Duży bliźniak 15 km od centrum Wrocławia
Małuszów, ul. Wrocławska
Cena m2: 4 994 zł 898 999 zł
Szczegóły
Lokalizacja
Opis
Dom w zabudowie bliźniaczej w Małuszowie (gm. Konierzyce) wg. zmodyfikowanego projektu Dino Duo.
Nowa inwestycja realizowana w 3 etapach. Zakończenie prac 4 kwartał 2024r.
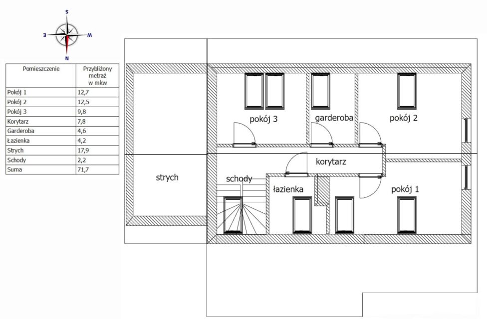
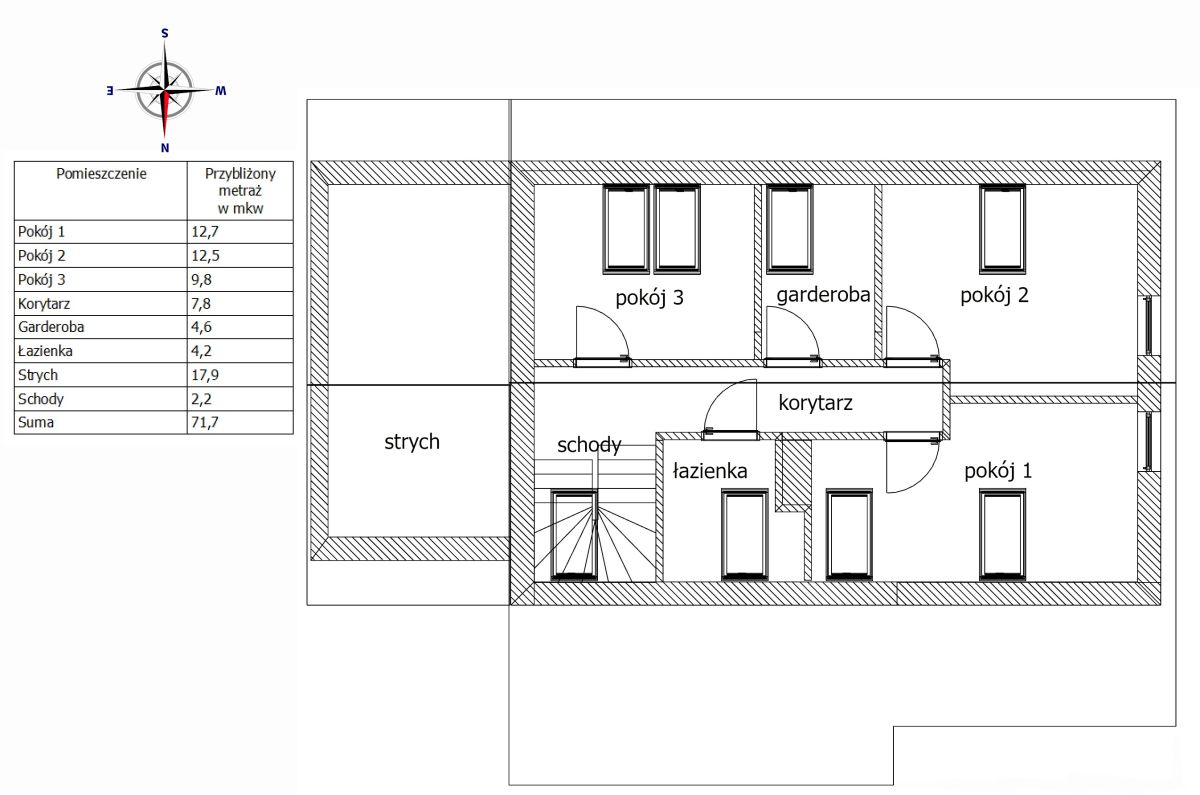
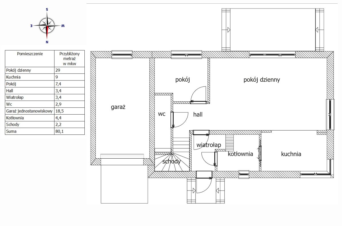
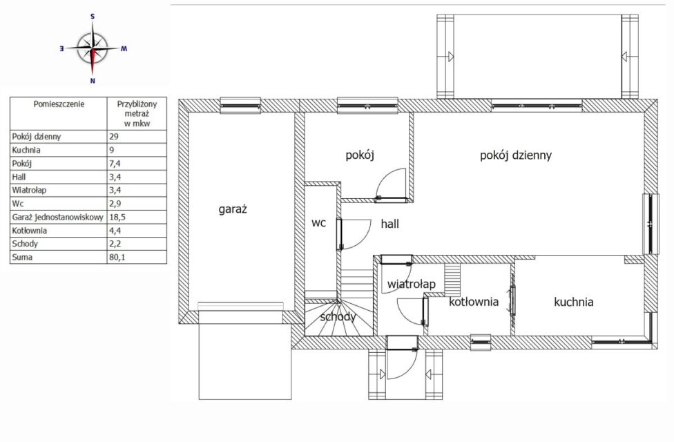
Dom składa się z następujących. pomieszczeń::
Parter: Salon – 28m2 Kuchnia – 8,4m2 Gabinet – 7,4m2 Hol – 3,4m2 Sień – 3,4m2 Toaleta – 2,9m2
Piętro: Przedpokój – 7,8m2; 3 Sypialnie: – 12m2, 11,7m2, 9,8m2 Łazienka – 4,17m2 Garderoba, 4,61m2
Dodatkowo garaż 18,3m2 oraz pomieszczenie nad garażem 16,4m2
Dom budowany w technologi tradycyjnej. Dodatkowo przygotowane zostaną przyłącza klimatyzacji oraz fotowoltaiki.
Dom będzie wyposażony w pompę ciepła, rolety (na parterze) oraz bramę sterowane elektryczne.
W garażu przyłącze do samochodowej ładowarki elektrycznej. Kanalizacja miejska!
Na tym etapie jest jeszcze opcja wprowadzania zmian jak dołożenie dodatkowych okien dachowych, etc.
Istnieje możliwość zamówienia wykończenia pod klucz..
Pozostałych informacji udzielamy telefonicznie.
